DATA SHEET FOR PP Damper Valves
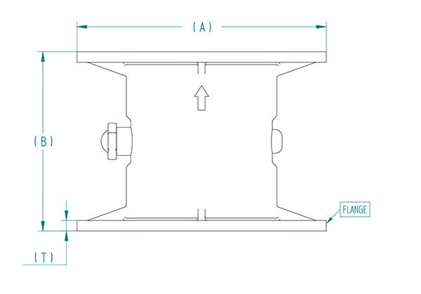
| SIZE | A | B | T | Flange | |||||
|---|---|---|---|---|---|---|---|---|---|
| BS 10 Table ‘F’ | ASA #150 | ||||||||
| PCD | Dia of Hole | No. of Hole | PCD | Dia of Hole | No. of Hole | ||||
| 4″ | 225 | 212 | 8 | 191 | 17 | 8 | 191 | 17 | 8 |
| 6″ | 300 | 215 | 8 | 260 | 18 | 12 | 241 | 18 | 8 |
| 8″ | 356 | 256 | 15 | 324 | 18 | 12 | 298 | 18 | 8 |
- HVAC systems
- Air handler
- VAV box
- Chimney
- Ventilation project
- Ducts
- Regulating/stopping air flow in the circular duct
- Water project
- Various air handling equipment
- Media transfer
- Venting
- Isolation
- Easy to install.
- Very low leakage.
- Molded article to avoid welding.
- Maximum chemical resistance.
- Easy to operate.
- Suitable for all corrosive and non-corrosive gas environments.
- Appropriate for low and high temperatures.
- Resistance to heat, abrasion and corrosion.
- Excellent insulation performance, minimal energy loss.
- Excellent sealing performance to prevent leakage of air.
- Quick working and easy installation.
- Weldable and meltable.
- Withstands high pressure for DN315, thickness 5mm.
- Parts are separable such as stop plate, handle, main body and screw nut for reconstruction.
- Various sizes available to fit in various duct pipes.
- Long service life.
- Anti-cracking
- Anti-rust
- Non-toxic
- Wear-resistant, non-fouling
- Anti-condensation, low heat loss
- Lightweight
- Less noise and vibration
PP DAMPER VALVE- HIGHLY RESISTANT TO CHEMICALS AND WITHSTANDS HIGH PRESSURE
A damper is a valve or plate that regulates or stops the flow of air inside a chimney, air handler, duct, VAV box or any other handling equipment. Nirmala pumps and Equipments are a renowned PP damper valve suppliers offering a range of fully injection molded PP (Polypropylene) dampers in size range of 3″ to 10″.
PP DAMPER VALVES EFFECTIVE DESIGN & VERSATILITY OF USE
PP damper valve is designed with the control knob, blade and flange regulated manually or using electricity. It is essential for use in industrial plants or civil construction of air conditioning, air purification project, ventilation and HVAC. PP damper valves are commonly used in ventilation pipes and air conditioning ducts by adjusting the angle of a baffle to adjust the air flow volume in the duct. Polypropylene is anti-corrosive, prevents water condensation and provides excellent insulation performance. Flanges can be melted or welded to this damper for specific applications.


